服务热线
0577-62755895

更新时间:2026-03-27
访问量:68
手机号码:13968710797
电话号码:0577-62755895
传真号码:0577-62755895
电子邮箱:1605874299@qq.com
公司名称:乐清市川泰电力设备有限公司
公司地址:浙江省柳市长荣路1-7
服务热线
0577-62755895
产品分类

GW4-17.5(40.5)系列户外隔离开关适用装置在户外交流50Hz。额定电压分别 为17.5KV和40.5KV电力系统中,供线路在有电压 无负载时作为开合电路之用。产品符合GB1985及其他相关标准要求。
二、使用环境条件
+海拔不超过1000m;
+环境温度上限为40℃,下限-25℃;
+无导电或起化学作用气体和蒸汽的场所;
+不受严重震动或冲击情况(如在电镐、挖泥机旁)的场所。

型号 | 额定电 | 额定电流 | 峰值耐受 | 4秒短时耐受 |
GW4 -17.5 | 17.5 | 200 | 40 | 16 |
400 | 50 | 20 | ||
630 | 50 | 20 | ||
1000 | 63 | 25 | ||
1250 | 63 | 25 | ||
GW4 -40.5(D) | 40.5 | 400 | 50 | 20 |
630 | 50 | 20 | ||
1000 | 63 | 25 | ||
1250 | 80 | 31.5 |
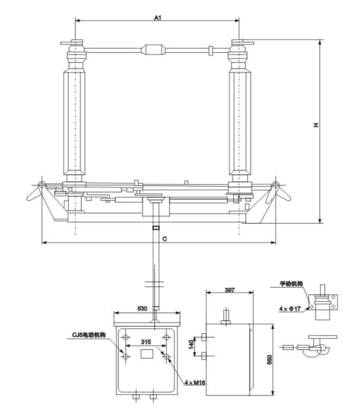
隔离开关由底座.绝缘支柱及导电部分以及操动机构等组成。每极有两个支柱, 每个支柱上端各装有导电闸刀.两部分闸刀触头接触处在两支柱的中间部位。 支柱的下端各装有轴承套,在操动机构的带动下,可使闸刀作水平旋转90度,从而达到分合闸之要求。隔离开关为单极 型,也可通过连杆将三极连成能够联动的三极型式。配用CS11(不接地)CS8-6D(单接地) CS17(双接地)型手动机构操作。(可根据需要配电动机构)从上述结构简介中不难看出,本隔离开关结构合理,操动灵活自如;可单极,也 可三极使用,安装方便;触也开距大,绝缘安全可靠。还可根据用户需要,不接地或配装单边接地或双接地均可。


